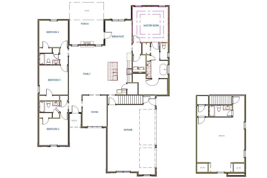
4 Bedrooms / 4 Baths Dining and Upstairs Bonus 3 Car Garage 3265 Square Feet
This plan is the property of Legacy Premier Homes, Inc. and can not be copied, built, or modified without written permission. Exterior shown is an example and may vary.
NO CARPET - Revwood (or similar) in living areas and bedrooms - Tile in wet areas - Wood shelving
Family Room with 12’ ceiling, 8' doorways, Gas Fireplace, Recessed Lights, Ceiling Fan
Dining Room with 12’ coffered ceiling, 8' doorways
Open Kitchen with 12’ ceiling, 8' openings, 9' Soft Close Custom Cabinets, Granite Counters, Large Island with Storage and Seating, Gas Cooktop Package w/ Cabinet Vent Hood, Tile Back Splash, Recessed and Under Cabinet Lights, Walk-in Pantry
Breakfast with 12’ ceiling
Laundry with 9' Ceiling and Custom Cabinet
Extensive Trim Package
Master Bedroom with 11' Double Tray Ceiling, Recessed Lights and Ceiling Fan
Glamour Bath with 11’ Ceiling, Glamour Tub, Tile Shower with Door, Double Vanity and Large Walk-in Closet
Large Upstairs Bonus Room Ceiling Fan and Bath
Other Bedrooms with 9' ceiling, Crown Molding, Ceiling Fan
Covered Porch with ceiling fan
Tankless Water Heater and Sodded Yard
2/10 Builder Warranty and Closing Cost Program
Legacy Grove has Pool, Clubhouse, Tennis Courts, Lakes, Street Lights, Sidewalks, Public Sewer and Professionally Managed HOA
Elevation 1 - See Website for Additional Elevations