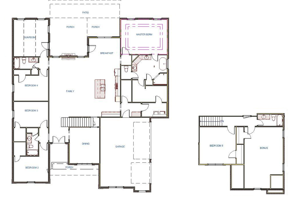
5 Bedrooms / 4 Baths Dining, Sunroom and Upstairs Bonus 3 Car Garage 4220 Square Feet
This plan is the property of Legacy Premier Homes, Inc. and can not be copied, built, or modified without written permission. Exterior shown is an example and may vary.
NO CARPET - Revwood (or similar) in living areas and bedrooms - Tile in wet areas - WOOD SHELVING
Family Room with 12’ ceiling, 8' doorways, Gas Fireplace, Recessed Lights, Ceiling Fan
Formal Dining Room with coffered ceiling
Open Kitchen with 12’ Ceilings, 8' doorway, 9' Soft Close Custom Cabinets, Granite Counters, Large Island w/ storage and seating, Gas Cooktop Package w/ Cabinet Vent Hood, Tile Back Splash, Recessed and Under Cabinet Lights, Walk-in Pantry and Drop Zone Bench
Breakfast with 12’ Ceilings
Extensive Trim Package
Sunroom with Vaulted Ceiling, Ceiling Fan
Master Bedroom down with 11' Double Tray Ceiling, Recessed Lights and Ceiling Fan
Glamour Bath with 11’ Ceiling, Freestanding Tub, Large Corner Tile Shower with 2 Shower heads and Rimless Door, Double Vanity with Granite and Huge Walk-in Closet
Other Bedrooms and Bonus with Crown Molding, Ceiling Fan
Large Rear Covered Porch
Tankless Water Heater and Sodded Yard
2/10 Builder Warranty and Closing Cost Program
Walton Creek has Under Ground Utilities, Street Lights, Side Walks, Natural Gas, Pool and Cabana
Elevation 1 - See Website for Additional Elevations