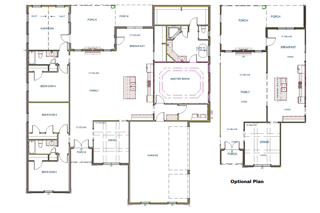
4 Bedrooms / 3 Baths Dining and Sunroom 3 Car Garage 3275 Square Feet
This plan is the property of Legacy Premier Homes, Inc. and can not be copied, built, or modified without written permission. Exterior shown is an example and may vary.
NO CARPET - Revwood flooring (or similar product) in living areas and bedrooms
Family Room with 12’ ceiling, 8' doorways, Gas Fireplace, Recessed Lights, Ceiling Fan
Dining Room with 12’ coffered ceiling, 8' doorways
Kitchen has 12' Ceilings, 8' doorways, 9' Soft Close Custom Cabinets, Granite Counters, Large island with storage and seating, Gas Cooktop Package w/ Cabinet Vent Hood, Tile Back Splash, Recessed and Under Cabinet Lights and HUGE Walk-in pantry
Sunroom with Vaulted Ceiling and Ceiling Fan
Other Bedrooms with 9' ceiling, Crown Molding, Ceiling Fan
Extensive Trim Package
Master Bedroom down with 11' Double Tray Ceiling, Recessed Lights and Ceiling Fan
Glamour Bath with 11’ Ceiling, Free Standing Tub, Large Corner Tile Shower with 2 Shower heads and Rimless Door, Double Vanity with Granite and Huge Walk-in Closet
Laundry with 9' ceiling and custom cabinets
Large Rear Covered Porch with ceiling fan
2/10 Builder Warranty and Closing Cost Program
Elevation 1 - See Website for Additional Elevations