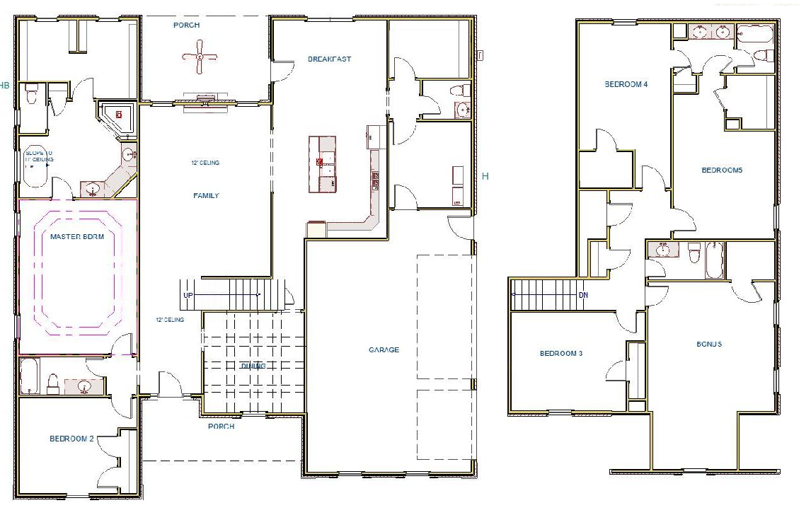
5 Bedrooms / 4.5 Baths Dining and Upstairs Bonus 3 Car Garage 4150 Square Feet
* Optional Covered Back Porch Additional TBD. This plan is the property of Legacy Premier Homes, Inc. and can not be copied, built, or modified without written permission. Exterior shown is an example and may vary.
NO CARPET - Revwood flooring (or similar product) in living areas and bedrooms
Family Room with 12’ ceiling, 8' doorways, Gas Fireplace, Recessed Lights, Ceiling Fan
Formal Dining Room with coffered ceiling
Kitchen with 9' Soft Close Custom Cabinets, Granite Counters, Large island with Bar Seating, Gas Cooktop Package w/ Cabinet Vent Hood, Tile Back Splash, Recessed and Under Cabinet Lights, Large Walk-in pantry
Extensive Trim Package and 9’ Ceilings on first floor
Other Bedrooms (one down) with Crown Molding, Ceiling Fan
Master Bedroom down with 11' Double Tray Ceiling, Recessed Lights and Ceiling Fan
Glamour Bath with 11’ Ceiling, Freestanding Tub, Large Corner Tile Shower with 2 shower heads and Rimless Door, Double Vanity with Granite and Huge Walk-in Closet
Large Laundry Room with Cabinets
Large Front and Rear Covered Porches
Tankless Water Heater and Sodded Yard
2/10 Builder Warranty and Closing Cost Program
Legacy Grove has Pool, Clubhouse, Tennis Courts, Lakes, Street Lights, Sidewalks, Public Sewer and Professionally Managed HOA
Elevation 4 - See Website for Additional Elevations