LPH

26375 OLD TOWN DR
Villas At Walton Creek - Lot 80
Dublin A - $393,900

Open Premier Plan
3 Bedrooms / 2 Baths
Dining
2075 Square Feet
2 Car Garage
Lot size: .13
No Carpet and Extensive Trim Through-out
Gas Cook Top Package

Also being built on

Villas At Walton Creek Lot 98 - $393,900

Description

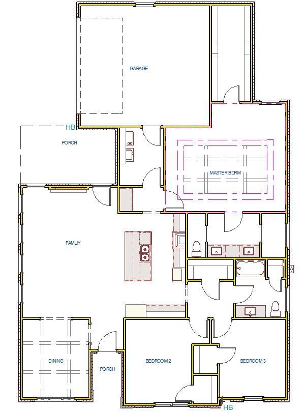
All brick Dublin Plan A is an open floor plan with 2 car side entry garage. Home has 3 bedrooms and 2 baths and is backed by a 2-10 home warranty. Home has wood plus flooring (Mohawk Revwood, Engineered Hardwood or similar product) in all living areas and bedrooms. Great Room features 12' ceiling, 8' Doorways, extensive trim, electric fireplace, recessed lights and ceiling fan. Open Kitchen includes 12’ ceiling w/ 8' doorways, 9' soft close custom cabinetry with granite counter tops, slab island, gas cook top package stainless appliances (Gas Cook Top, Cabinet Vent Hood, Wall Oven and Microwave, Dishwasher), tile backsplash, recessed and under cabinet lighting, and walk-in pantry with wood shelving. Dining room has 12’ coffered ceiling with 8' tall doorways and extensive trim including shadow box under chair rail. Master bedroom with sitting area has a 11' double tray ceiling, recessed lighting, extensive trim, ceiling fan and extra-large walk-in closet with wood shelving. Master bath has 11’ ceilings, tile shower with rimless door, separate toilet area, granite double vanity. The additional bedrooms have 9' ceilings, ceiling fans and crown molding. The additional baths have 9' ceiling, tile flooring and granite counter tops. Home has a covered back porch with ceiling fan. The home has a tankless Renai water heater. Home includes a fully sodded yard, gutters including piping under sidewalks and attractive landscaping. Builder has a closing cost program. Villas At Walton Creek has underground utilities, street lights, side walks, curb and gutter, Pool and Cabana.

Lot Desciption

Lot size: 60x95


MLS Listing IconPhoto Gallery Icon360 Tour IconPrint Icon

Floor Plan

This plan is the property of Legacy Premier Homes, Inc. and can not be copied, built, or modified without written permission.

First Floor

Floor Plan

Elevation

Exterior shown is an example and may vary.

Home Elevation

Print Icon
Directions to Subdivisions

Sales and New Home Coordinator:

Alabama Builders #:  23623

Better Business and 2-10 Warranty

Edit Site      Edit New Homes    Customize Your Home