Exterior shown is an example and may vary. Click elevation for printable brochure
This plan is the property of Legacy Premier Homes, Inc. and can not be copied, built, or modified without written permission.
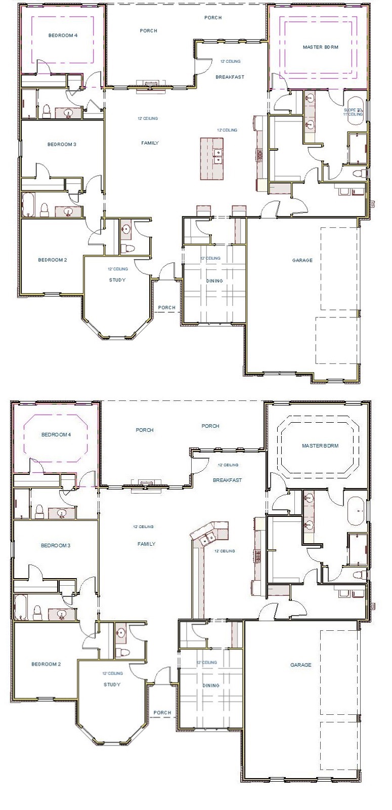
First Floor

All brick Alexandria Plan B is an open plan with a 3 car side entry garage backed by a 2-10 home warranty. Home has 4 bedrooms, 3 baths and a Study. Home has wood plus flooring (Mohawk Revwood, Engineered Hardwood or similar product) in all living areas and bedrooms. Great Room features 12' ceiling, 8' tall doorways, extensive trim, gas-log fireplace with upgraded fireplace treatment and recessed lights and ceiling fan. Dining room has 12’ coffered ceiling, extensive trim including shadow box under chair rail. Study features 12' ceiling and extensive trim. Open Kitchen has 12’ ceilings in kitchen, 8' tall doorways, 9' soft close custom cabinetry and granite countertops, large island with extra storage and countertop seating, stainless appliances (Gas Cooktop, Cabinet Vent Hood, Wall Oven, Wall Microwave, Dishwasher), tile backsplash, recessed an under cabient lighting. Home has butler pantry with cabinets on one side and storage on the other side. Breakfast has 12’ ceiling and extensive trim. Laundry has custom cabinet, tile flooring. Master bedroom has 11’ double tray ceiling, recessed lighting, extensive trim and ceiling fan. Master bath has 11’ ceilings, freestanding tub, large tile shower with tile bottom two shower heads and rimless shower door, separate toilet area, double vanity with granite counter tops and huge walk-in closet. The additional bedrooms have 9' ceilings, ceiling fans, and crown molding. This home also has secondary master bedroom with tray ceiling and its bathroom has tile shower. The additional baths have 9' ceilings, tile flooring and granite counter tops. Home has large rear covered porch. Home includes sodded yard amount varies by subdivision, gutters including piping under sidewalks and attractive landscaping. Builder has a closing cost program.
Optional Closed Kitchen.
| Lot | Desciption | Plan Specific Premium (This is Total Lot Premium) |
|---|---|---|
| Evans and Grubb Lot 6 | 191X660 | |
| Evans and Grubb Lot 8 | 191X658 | |
| Evans and Grubb Lot 10 | 191X656 | |
| Evans and Grubb Lot 11 | 200X655 | |
| Evans and Grubb Lot 14 | 191X652 | |
| Evans and Grubb Lot 15 | 191X653 | |
| Evans and Grubb Lot 16 | 191X653 | |
| Evans and Grubb Lot 18 | 191X654 | |
| Evans and Grubb Lot 19 | 191X655 | |
| Evans and Grubb Lot 20 | 191X657 | |
| Evans and Grubb Lot 21 | 191X658 |
Alabama Builders #: 23623