Exterior shown is an example and may vary. Click elevation for printable brochure
This plan is the property of Legacy Premier Homes, Inc. and can not be copied, built, or modified without written permission.
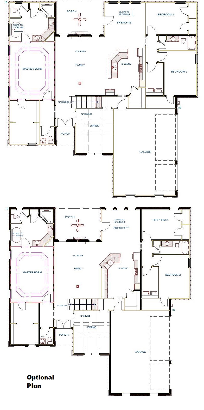
First Floor

Second Floor

All brick Brookside Plan B is an open plan with a 3 car side entry garage backed by a 2-10 home warranty. Home has 4 bedrooms, 3 and ½ baths, and bonus room. Home has wood plus flooring (Mohawk Revwood, Engineered Hardwood, or similar product) in all living areas and bedrooms. Great Room features 12' ceiling, 8' tall doorways, extensive trim, gas-log fireplace with upgraded fireplace treatment, recessed lights and ceiling fan. Dining room has 12’ coffered ceiling, extensive trim including shadow box under chair rail. Open Kitchen includes 12’ ceiling, 8' tall doorways, 9' soft close custom cabinetry and granite counter tops, large 45 degree island with raised bar seating, stainless appliances (Gas Cooktop, Cabinet Vent Hood, Wall Oven, Wall Microwave, Dishwasher), tile backsplash, recessed and under cabinet lighting, large walk-in pantry and drop zone bench. Breakfast has 12’ ceiling and extensive trim. Laundry has custom cabinet, tile flooring. Master bedroom has 11’ double tray ceiling, recessed lighting, extensive trim and ceiling fan. Master bath has 11’ ceilings, freestanding tub, large corner tile shower with tile bottom, two shower heads and rimless shower door, separate toilet area, large double vanity with granite and huge walk-in closet. The home has hardwood stairs leading to the second story. The additional bedrooms and bonus room have ceiling fans and crown molding. The baths have tile flooring and granite counter tops. Home has large rear covered porch perfect for entertaining. Home includes sodded yard amount varies by subdivision, gutters including piping under sidewalks and attractive landscaping. Builder has a closing cost program.
| Lot | Desciption | Plan Specific Premium (This is Total Lot Premium) |
|---|---|---|
| Evans and Grubb Lot 6 | 191X660 | |
| Evans and Grubb Lot 8 | 191X658 | |
| Evans and Grubb Lot 10 | 191X656 | |
| Evans and Grubb Lot 11 | 200X655 | |
| Evans and Grubb Lot 14 | 191X652 | |
| Evans and Grubb Lot 15 | 191X653 | |
| Evans and Grubb Lot 16 | 191X653 | |
| Evans and Grubb Lot 18 | 191X654 | |
| Evans and Grubb Lot 19 | 191X655 | |
| Evans and Grubb Lot 20 | 191X657 | |
| Evans and Grubb Lot 21 | 191X658 |
Alabama Builders #: 23623