Exterior shown is an example and may vary. Click elevation for printable brochure
This plan is the property of Legacy Premier Homes, Inc. and can not be copied, built, or modified without written permission.
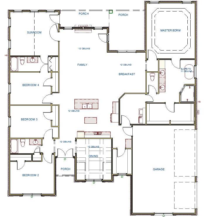
First Floor

All brick Cambridge Plan D is an open plan with a 3 car side entry garage backed by a 2-10 home warranty. Home has 4 bedrooms, 3 baths and a sunroom. Home has wood plus flooring (Mohawk Revwood, Engineered Hardwood, or similar product) in all living areas and bedrooms. Great Room features 12' ceiling, 8' tall doorways, extensive trim, gas-log fireplace with upgraded fireplace treatment, floor outlet, recessed lights and ceiling fan. Dining room has 12’ coffered ceiling, 8' tall doorway, extensive trim including shadow box under chair rail. Open Kitchen includes 12’ ceiling, 9' soft close custom cabinetry and granite countertops, large island with countertop seating, second prep island, stainless appliances (Gas Cooktop, Cabinet Vent Hood, Wall Oven, Wall Microwave, Dishwasher), tile backsplash, recessed and under cabinet lighting, huge walk-in pantry with wood shelving, and drop zone bench. Breakfast has 12’ ceiling and extensive trim. Master bedroom has 11’ double tray ceiling, recessed lighting, extensive trim and ceiling fan. Master bath has 11’ ceilings, freestanding tub, large corner tile shower with two shower heads and rimless door, separate toilet area, large double vanity with granite, huge walk-in closet with wood shelving and access to laundry. Large sunroom has vaulted ceiling and ceiling fan. The additional bedrooms have 9' ceilings, ceiling fans, crown molding and wood shelving in closets. The additional baths have 9' ceilings, tile flooring and granite counter tops., Laundry has 9' ceilings, custom cabinet and tile flooring. Large rear covered porch with ceiling fan. The home has a tankless water heater. Home includes sodded yard amount varies by subdivision, gutters (piped under sidewalks) and attractive landscaping. Builder has a closing cost program.
| Lot | Desciption | Plan Specific Premium (This is Total Lot Premium) |
|---|---|---|
| Evans and Grubb Lot 6 | 191X660 | |
| Evans and Grubb Lot 8 | 191X658 | |
| Evans and Grubb Lot 10 | 191X656 | |
| Evans and Grubb Lot 11 | 200X655 | |
| Evans and Grubb Lot 14 | 191X652 | |
| Evans and Grubb Lot 15 | 191X653 | |
| Evans and Grubb Lot 16 | 191X653 | |
| Evans and Grubb Lot 18 | 191X654 | |
| Evans and Grubb Lot 19 | 191X655 | |
| Evans and Grubb Lot 20 | 191X657 | |
| Evans and Grubb Lot 21 | 191X658 |
Alabama Builders #: 23623