Exterior shown is an example and may vary. Click elevation for printable brochure
This plan is the property of Legacy Premier Homes, Inc. and can not be copied, built, or modified without written permission.
First Floor

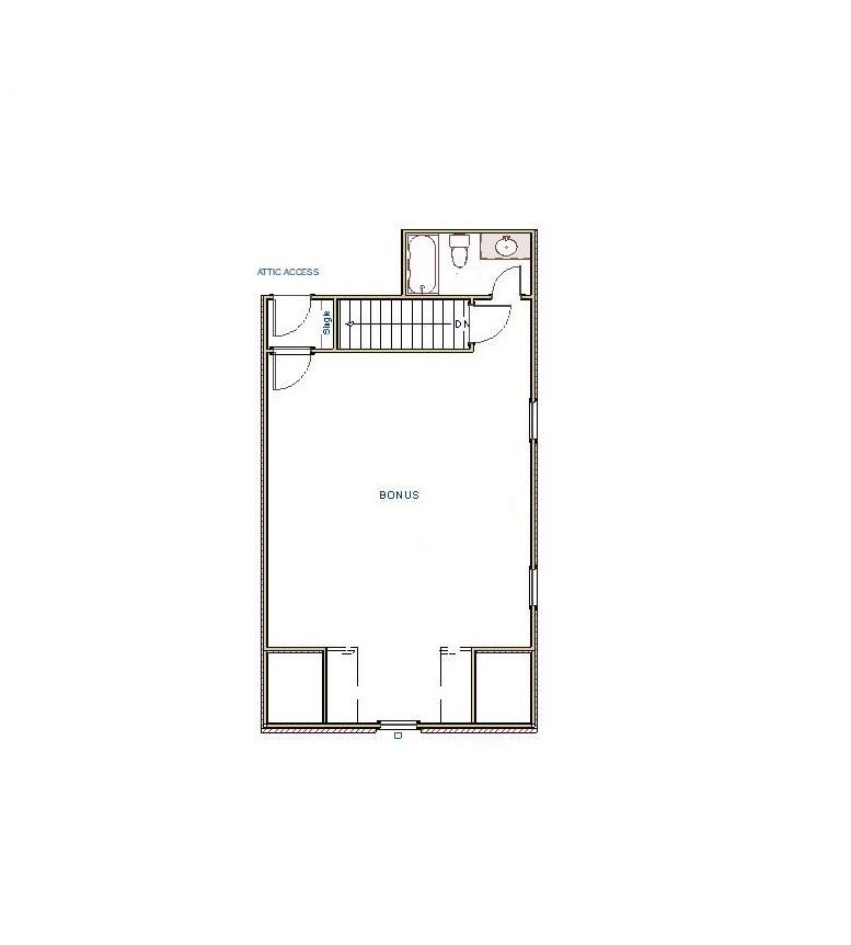
Second Floor

All brick Huntington Plan B is an open plan with a 3-car side entry garage backed by a 2-10 home warranty. Home has 4 bedrooms, 4 baths, and huge upstairs bonus room. Home has wood plus flooring (Mohawk Revwood, Engineered Hardwood or similar product) in all living areas and bedrooms. Great Room features 12' ceiling, 8' tall doorways, extensive trim, gas-log fireplace with upgraded fireplace treatment, floor outlet, recessed lights and ceiling fan. Dining room has 12’ coffered ceiling, extensive trim including shadow box under chair rail. Open Kitchen includes 12’ ceiling, 8' tall doorways, 9' soft close custom cabinetry with granite countertops, large island with extra storage and countertop seating, stainless appliances (Gas Cooktop, Cabinet Vent Hood, Wall Oven, Wall Microwave, Dishwasher), tile backsplash, recessed and under cabient lighting, large walk-in pantry with wood shelving. Breakfast has 12’ ceiling and wood plus flooring. Master bedroom has 11’ double tray ceiling, recessed lighting, extensive trim and ceiling fan. Master bath has 11’ ceilings, freestanding tub, large tile shower with tile bottom, two shower heads and rimless shower door, separate toilet area, large double vanity with granite and huge walk-in closet with wood shelving. The additional bedrooms have 9' ceilings, crown molding, ceiling fans and wood shelving in closets. The two additional downstairs baths have 9' ceilings, tile flooring and granite countertops. The home has hardwood stairs leading to the second story bonus and bath. The additional bonus room has a ceiling fan and crown molding. The additional upstairs bath has granite countertops. Laundry has 9' ceilings, custom cabinet, and tile flooring. Home has large rear covered porch with ceiling fan. The home has a tankless water heater. Home includes sodded yard amount varies by subdivision, gutters including piping under sidewalks and attractive landscaping. Builder has a closing cost program.
| Lot | Desciption | Plan Specific Premium (This is Total Lot Premium) |
|---|---|---|
| Evans and Grubb Lot 6 | 191X660 | |
| Evans and Grubb Lot 8 | 191X658 | |
| Evans and Grubb Lot 10 | 191X656 | |
| Evans and Grubb Lot 11 | 200X655 | |
| Evans and Grubb Lot 14 | 191X652 | |
| Evans and Grubb Lot 15 | 191X653 | |
| Evans and Grubb Lot 16 | 191X653 | |
| Evans and Grubb Lot 18 | 191X654 | |
| Evans and Grubb Lot 19 | 191X655 | |
| Evans and Grubb Lot 20 | 191X657 | |
| Evans and Grubb Lot 21 | 191X658 |
Alabama Builders #: 23623